

+1 fotografie
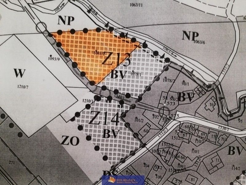
Nabízím na prodej parcelu o ploše 3 789 m² v katastrálním území Božíčany. Parcela je na základě územního plánu zahrnuta k výstavbě rodinného domu se 2 NP a obyvatelným podkrovím. Maximální výška hřebene 10 m, koeficient zastavěnosti 40, výměra plochy 0,2 ha. Výstavba může být provedena v západní části obce při vnitřní místní komunikaci. Architektonická podoba domu není určena. Inženýrské sítě jsou ve vzdálenosti cca 120 m.
Parametry
- ID nabídky Realingo-153230
- Osobní vlastnictví
- na Realingu
- Aktualizace před 63 dny
Mapa se načítá...
Co je v okolí
včetně kontaktních údajů na majitele
Jste inzerent?
Je toto vaše nabídka? Vylepšete ji a získejte více zájemců. Inzerování na Realingu je zdarma pro všechny.
Podobné nabídky v okolí
včetně kontaktních údajů na majitele
Jste inzerent?
Je toto vaše nabídka? Vylepšete ji a získejte více zájemců. Inzerování na Realingu je zdarma pro všechny.







