

+1 fotografie
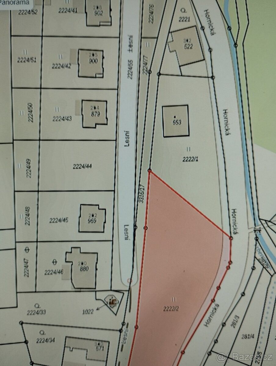
Prodám stavební pozemek ve Starém městě pod Sněžníkem. Jedná o dvě na sobě navazující parcely pod č. 2224/44 a 2224/49 na ul. Lesní. Celková plocha je necelých 800m². Na hranici jsou inženýrské sítě, tak jde ihned stavět. Nejedná se o pozemek bez přístupu, jak někteří nabízejí, vyhovím pouze nabídce, která mě zaujme, pište. RK nevolat!
Parametry
- na Realingu
Mapa se načítá...
Co je v okolí
včetně kontaktních údajů na majitele
Jste inzerent?
Je toto vaše nabídka? Vylepšete ji a získejte více zájemců. Inzerování na Realingu je zdarma pro všechny.
Podobné nabídky v okolí
včetně kontaktních údajů na majitele
Jste inzerent?
Je toto vaše nabídka? Vylepšete ji a získejte více zájemců. Inzerování na Realingu je zdarma pro všechny.







