

9 724 Kč
Kancelář, 460 02, Liberec
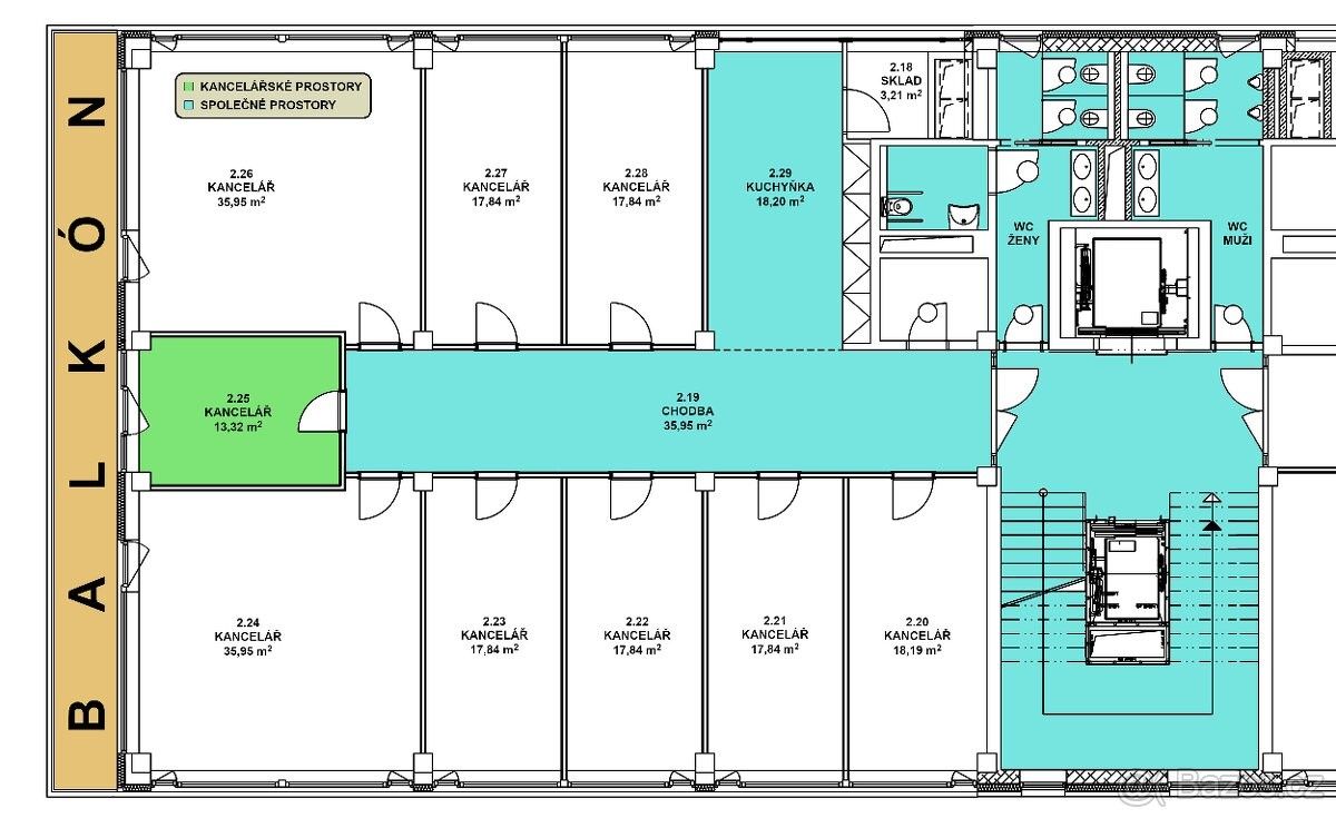
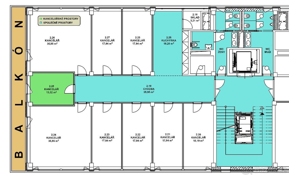
Dovolujeme si Vám nabídnout pronájem moderních kancelářských prostor včetně parkovacích míst v prestižní administrativní budově společnosti DTZ s.r.o., která se nachází v širším centru města Liberce - v městské části Nové Město. Administrativní budova byla kolaudována na konci roku 2023 a je vhodná pro malé a střední firmy, které hledají profesionální a komfortní prostředí pro své podnikání. Budova využívá moderní technická řešení, která zajišťuje efektivitu pro všechny zájemce, šetrnost k životnímu prostředí a zároveň úsporu energií. K topení/chlazení využívá tepelná čerpadla. Integrovaná vzduchotechnika zajišťuje optimální cirkulaci vzduchu a příjemné klima v interiéru. Pro maximální pohodlí a ochranu proti slunečnímu záření jsou na budově instalovány venkovní automatické žaluzie, což zvyšuje celkovou energetickou účinnost. V lobby nabízíme služby recepce a stylového bistra s nabídkou poledního menu a jiného kvalitního občerstvení. Parkování a přístup do budovy je možný 24/7. Tato lokalita poskytuje snadnou veřejnou dostupnost a blízkost důležitých služeb. K pronájmu nabízíme jednotlivé kancelářské prostory v prvním a druhém podlaží budovy o celkové výměře 945 m² rozdělené na jednotlivé kanceláře podle přiložených půdorysů. Prostory se momentálně připravují – probíhá instalace dělících příček a dalšího technické vybavení. Dokončení je plánované na konec listopadu 2025. Kanceláře se pronajímají bez vybavení kancelářským nábytkem. Ve 2.NP nabízíme kanceláře: Místnost č. 2.25 s balkonem směrem do ul. Chrastavská, s výměrou 13,32m²Cena nájmu včetně poplatků 9.724 Kč + zálohy za energie 779 Kč/měsícMístnost č. 2.26, 2.24 s výměrou 35,95 m² s výstupem na balkón směrem do ul. Chrastavská Cena nájmu včetně poplatků 16.897 Kč + zálohy za energie 2.103 Kč/měsíc Místnost č. 2.27, 2.28, 2.23, 2.22, 2.21, 2.20 s výměrou 17,84 (18,19 m²)Cena nájmu včetně poplatků 10.526 Kč + zálohy za energie 1.047 Kč/měsíc V 1.NP vlevo nabízíme kancelář o výměře 72,49 m² s výhledem do ul. Chrastavská.Cena nájmu vč. poplatků 27.329 Kč + zálohy za energie 4.241 Kč/měsíc. V tomto podlaží vpravo jsou k dispozici další tři kanceláře s výměrou 37,26 m², 29,37m² a kancelář s výměrou 128,80 m² se samostatným vstupem z areálu z ul. U Věže. Cena nájmu kanceláře s poplatky kanceláře 37,26 m² - 17.065 Kč + zálohy za energie 2.180 Kč/měsíc Cena nájmu kanceláře s poplatky 29,37 m² - 13.451Kč + zálohy za energie 1.718 Kč/měsícCena nájmu kanceláře s poplatky 128,80 m² - 48.686 Kč + zálohy za energie 7.535 Kč/měsíc V každé polovině patra se nachází sociální zázemí, které se sdílí společně s ostatními nájemci. Cena nájmu, poplatků za služby a záloh za energie je stanovena pro každou jednotlivou místnost a zahrnuje cenu za nájem a poplatky vzájemně sdílených prostor. Kanceláře lze vybrat podle potřeb uživatele a vzájemně kombinovat.Cena parkování v uzavřeném areálu
Parametry
- na Realingu
- Aktualizace před 31 dny
Co je v okolí
včetně kontaktních údajů na majitele
Jste inzerent?
Je toto vaše nabídka? Vylepšete ji a získejte více zájemců. Inzerování na Realingu je zdarma pro všechny.
9 724 Kč
Kancelář
460 02, Liberec
včetně kontaktních údajů na majitele
Jste inzerent?
Je toto vaše nabídka? Vylepšete ji a získejte více zájemců. Inzerování na Realingu je zdarma pro všechny.

