

Cena dohodou
Obchodní prostory, Sloup v Moravském Krasu, 679 13
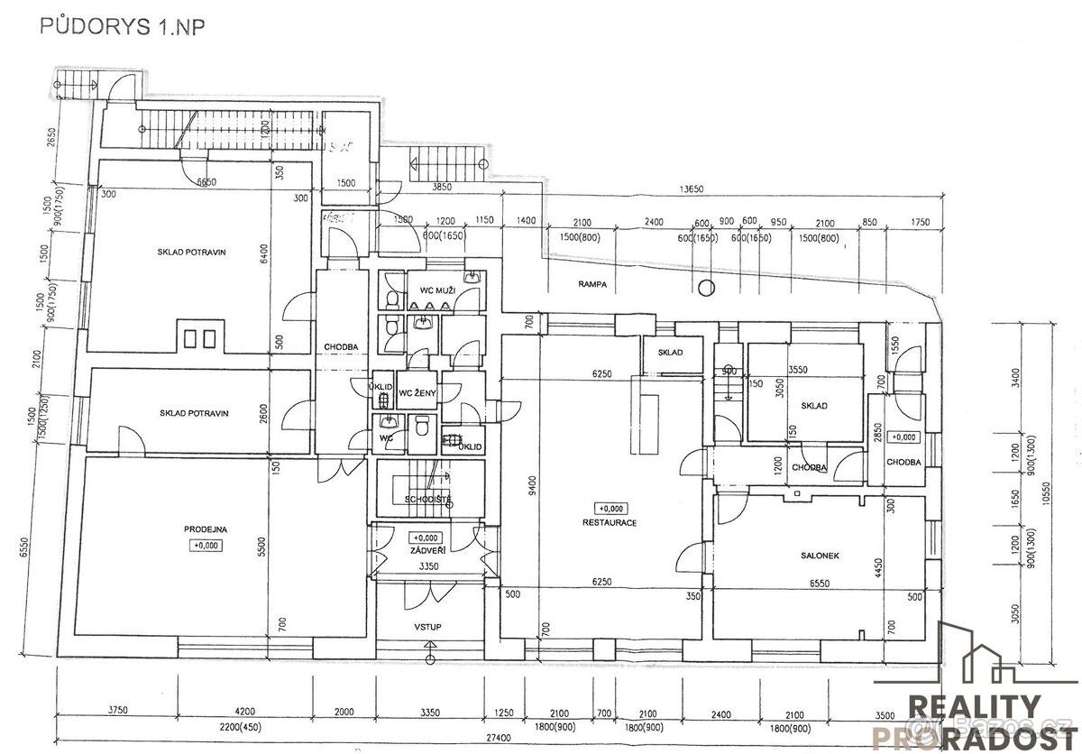
Nabízíme k pronájmu komerční budovu v obci Veselice na Moravě.Tento objekt byl původně využíván jako prodejna smíšeného zboží společně s restaurací v přízemí objektu. Nabízí tedy kompletní zázemí pro tyto provozy, jako je zásobovací rampa, výtah do sklepa, skladovací prostory, sociální zařízení restaurace atd. Restaurace má rovněž malou předzahrádku. Jeden sklep slouží jako zázemí restaurace, ve druhém sklepě je technické zázemí s novým plynovým kotlem. Na pozemku za budovou lze parkovat. Většina budovy je osazena plastovými okny. Prostory je možno využít k podnikání (prodejna potravin, restaurace, skladování, drobná výroba). Objekt je připojen na elektřinu, vodu i plyn.Nabídka přímo od majitele:Karel SvobodaSTROJE SVOBODA s.r.o.Svitavská 2397678 01 BlanskoMobile/Whatsapp: +420 608 860 497Bez provize RK, při uzavírání nájemní smlouvy se hradí pouze kauce ve výši jednoho měsíčního nájmu.ev.č.: 7741 (25992)cena u makléřetřída energetické náročnosti budovy: G - Mimořádně nehospodárnádle vyhlášky č.264/2020 Sb.druh objektu: Cihlovástav objektu: Velmi dobrýtyp domu: Přízemnízastavěná plocha (m²): 536plocha kanceláří (m²): 400počet podlaží objektu: 2počet míst k parkování: 4
Parametry
- na Realingu
- Včera aktualizováno
Co je v okolí
včetně kontaktních údajů na majitele
Jste inzerent?
Je toto vaše nabídka? Vylepšete ji a získejte více zájemců. Inzerování na Realingu je zdarma pro všechny.
Podobné nabídky v okolí
Cena dohodou
Obchodní prostory
Sloup v Moravském Krasu, 679 13
včetně kontaktních údajů na majitele
Jste inzerent?
Je toto vaše nabídka? Vylepšete ji a získejte více zájemců. Inzerování na Realingu je zdarma pro všechny.




