Tato nabídka již není k dispozici
(od 1. 12. 21:25)

Neaktivní nabídka
30 990 000 Kč
2 157 Kč za m²
Splátka od 126 390 Kč měsíčně (úrok 4,49 %)Pozemek pro bydlení, 14 m², Minice, Kralupy nad Vltavou
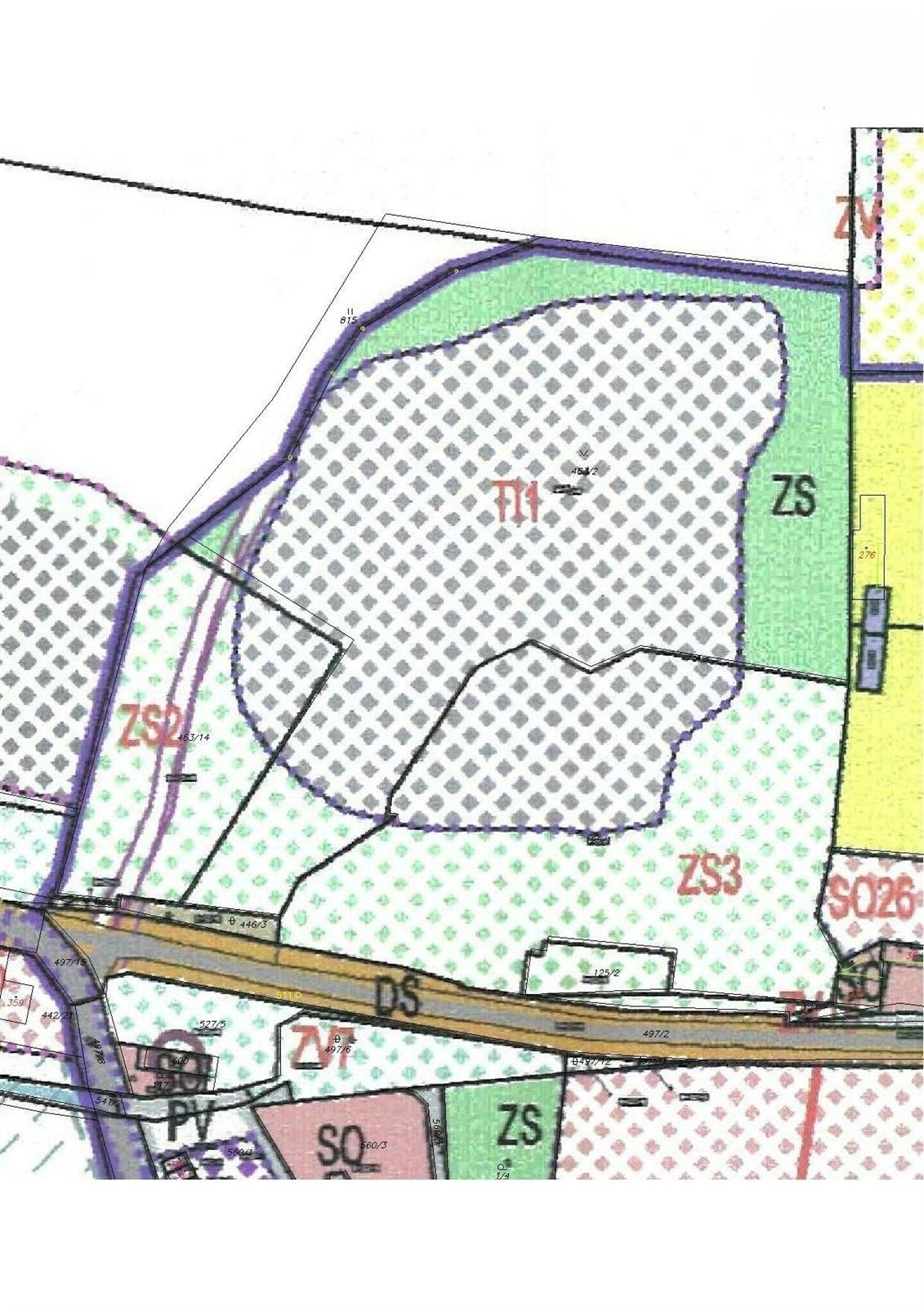
Dovoluji si vám nabídnout velmi hezký stavební pozemek v Kralupech nad Vltavou. Nachází se v části Minice. Celková výměra pozemku je přes 14.000m m² a lze na něm postavit cca 11-12 rodinných domů. Tento lukrativní pozemek se nachází na výjezdu z města při komunikaci Kladenská. Na letišti Václava Havla jste za 20 minut a v Letňanech za 25 minut. Slunce zde svítí takřka po celý den. Inženýrské sítě jako je voda, elektřina a plyn nalezneme těsně za hranicí pozemku. Tlaková kanalizace, která je plánovaná je cca 250m daleko. Pokud vás tato nabídka zaujala zavolejte si o více informací.Za tým RealitasFIN Tomáš Fodor realitní makléř-
Parametry
- ID nabídky Realingo-627
- 14 m² pozemku
- 2 213 571 Kč za m² pozemku
- na Realingu
- Aktualizace před 59 dny
Mapa se načítá...
Co je v okolí
Podobné nabídky v okolí
Neaktivní nabídka
30 990 000 Kč
2 157 Kč za m²
Splátka od 126 390 Kč měsíčně (úrok 4,49 %)






